Effizienz im Doppelpack: YADOS implementiert hybride Wärmeversorgung in QNG-gefördertem Holzhybridprojekt

Effizienz im Doppelpack: YADOS implementiert hybride Wärmeversorgung in QNG-gefördertem Holzhybridprojekt
- Mehrfamilienhaus
- Neubau
- Fernwärme
YADOS Effizienz-Komponenten und YADO|LINK HSC sichern leistungsstarken Wärmenetzbetrieb
Nachhaltige Baustoffe und hohe Energieeffizienz
Die Holzhybridbauweise, die die Materialien Holz, Beton und Stahl mit ihren jeweiligen Stärken vereint, bietet zahlreiche Vorteile, insbesondere eine ausgezeichnete Wärmedämmung und hohe Flexibilität in der Gestaltung. Im Fokus steht dabei der Rohstoff Holz, der als nachhaltiger und ökologischer Baustoff für hohe Energieeffizienz steht und zur Reduzierung des CO₂-Ausstoßes beiträgt.
Fern- und Umweltwärme als Hybrid-Systemlösung

Fernwärmeübergabestation

Heizungsverteiler

Wärmepumpe
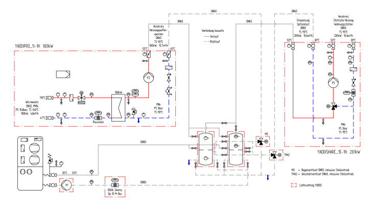
Systemaufbau im Gebäudenetz
Luft/Wasser-Wärmepumpe und Fernwärmeübergabestation versorgen zwei parallel geschaltete HOVAL Heizwasserpufferspeicher mit thermischer Energie. Das aufgeheizte Wasser wird anschließend über einen Heizkreis zu den Wohnungsstationen geführt.
Die dezentrale Trinkwarmwasserbereitung erfolgt über insgesamt 58 installierte Wohnungsstationen. Sollte die Leistung der Wärmepumpe bei Spitzenlasten nicht ausreichen, unterstützt die YADOS Fernwärmestation, indem sie das obere Drittel der Pufferspeicher belädt. Das hydraulisch abgeglichene System arbeitet ideal im Verbund, wodurch die Energieeffizienz deutlich maximiert und Umweltbelastungen entsprechend minimiert werden.

Kostensenkung dank Erneuerbarer Energie
Darüber hinaus wird in einer Photovoltaikanlage (PV-Anlage) mit einer Leistung von ca. 48 kWp erzeugter Strom anteilig zur Deckung des Strombedarfs der Wärmepumpe genutzt, was einem prognostizierten Deckungsanteil von ca. 30% entspricht.
Durch den Einsatz der Wärmepumpe wird im Gesamtsystem ein Anteil von über 65% Erneuerbarer Energien erreicht, wodurch die CO₂-Emissionen im Vergleich zu herkömmlichen Wärmeversorgungssystemen erheblich reduziert werden. Zudem unterliegt die von der Wärmepumpe erzeugte Wärmemenge nicht der CO₂-Bepreisung gemäß dem Brennstoffemissionshandelsgesetz (BEHG), sodass sich das Kostenrisiko aufgrund potenziell steigender CO₂-Preise für die Mieter verringert.
Finanzieller Anreiz: Die QNG-Förderung
Das Projekt Dankwartstraße profitiert von den Förderkonditionen des Bundesförderprogramms für effiziente Gebäude (BEG), insbesondere für klimafreundliche Neubauten mit dem Qualitätssiegel Nachhaltiges Gebäude (QNG). Das QNG stellt einen integralen Bestandteil der deutschen Baupolitik dar, um den ökologischen Fußabdruck von Neubauten zu reduzieren und gleichzeitig soziale sowie wirtschaftliche Standards zu fördern. Das staatliche QNG Gütesiegel, seit dem 1. Juli 2021 im Rahmen der Bundesförderung für effiziente Gebäude (BEG) eingeführt, dient der Förderung nachhaltiger Baupraktiken in Deutschland und ist Voraussetzung für die Inanspruchnahme von Fördermitteln der Kreditanstalt für Wiederaufbau (KfW) für Neubauten und Sanierungen.
Weiter Informationen zum QNG: https://www.qng.info
Intelligente Steuerung und Überwachung des Wärmenetzes mit YADO|LINK HSC
Die flexible Technologie ermöglicht die Echtzeitüberwachung, -steuerung und -analyse aller angeschlossenen Erzeuger- und Teilsysteme und ist in der Lage, komplexe Funktionsabfragen zu verarbeiten. Die dafür relevanten Informationen bezieht das System über vernetzte Sensoren, Aktoren und Regelungseinheiten.

Die systemübergreifende Anlagenüberwachung (24/7 Datenaufzeichnung) und -optimierung steigert signifikant die Effizienz der Energienutzung im Gebäude. Die cloudbasierte Lösung erlaubt eine flexible und umfangreiche Anlagenkonfiguration sowie den zeit-, orts- und geräteunabhängigen Zugriff per Smartphone, Tablet oder PC.
Projektpartner LEESO:
Von der Konzeptentwicklung bis zum Mieterstrom
Die LE Energy Solutions GmbH (LEESO) mit Sitz in Leipzig vereint energiewirtschaftliche Expertise mit langjähriger Erfahrung in wohnungswirtschaftlichen Prozessen und städtebaulicher Quartiersentwicklung. Das Unternehmen entwickelt passgenaue, nachhaltige Energielösungen und bietet ein breites Dienstleistungsangebot, das Wärme- und Stromlieferung sowie Metering und Abrechnung umfasst.
Im Rahmen des Projektes in der Leipziger Dankwartstraße war LEESO maßgeblich in die Konzeptentwicklung eingebunden und wird die Wärmeerzeugungsanlage zukünftig betreiben. Ferner hat die LEESO die PV-Anlage errichtet und wird den PV-Strom den Mietern im Rahmen eines Mieterstrommodells langfristig zu attraktiven Konditionen zur Verfügung stellen.
Im Projekt in der Leipziger Dankwartstraße war LEESO maßgeblich an der Konzeptentwicklung beteiligt und wird künftig die Wärmeerzeugungsanlage betreiben. Zudem hat LEESO die Photovoltaikanlage errichtet und wird den Mietern im Rahmen eines Mieterstrommodells den PV-Strom zu attraktiven Konditionen bereitstellen.
Weiter Informationen: www.leeso.de

Ihr Ansprechpartner zu dieser Referenz:
Henning Fischer
+49 151 58472058
Henning.Fischer@yados.de